Casa da Montanha: Charme e Abundância em Projeto Único
- Sabella Arquitetura
- 22 de jan. de 2019
- 1 min de leitura
Atualizado: 9 de jun.
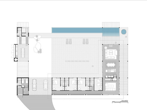
Casa da montanha com 417m²construída com materiais da região é referência para a arquitetura atual por sua delicadeza e grandeza

O projeto é de autoria do Escritório Sabella Arquitetura e foi desenvolvido pelo arquiteto Frederico Escobar Sabella, que fez a construção em um platô natural no alto de um morro, onde hoje acolhe a casa que foi construída com os materiais tradicionais daquela região.
O desenho do projeto da casa da montanha revela logo no início a elaboração no telhado pouco inclinado, nas pérgolas que se alongam, na horizontalidade das alas e na modulação, tanto das fachadas como dos ambientes internos.
Diante de tantas belezas da obra, se sobressai o aconchegante espaço social de 80 m² que foi feito livre de paredes. Caixilhos de vidro aproximam a serra de quem desfruta do calor da lareira e do fogão a lenha, enquanto conversa, cozinha ou simplesmente relaxa no sofá da casa. Orientada para o norte e protegida do gélido vento sul, a construção envolve um pátio onde o tronco de uma araucária combalida virou um extenso banco.
A piscina com borda infinita e a varanda que só encontra limite nas pedras do terreno, acentuam a sensação de agradável isolamento na casa da montanha.
Ao todo, os moradores do local podem sempre desfrutar de todo o conforto de seis suítes, sauna e espaço gourmet que a casa oferece.
Mais informações em: www.sabella.com.br




























